$1,325,000
1,521
SQ FT
$871
SQ/FT
5961 South Surf Court
@ Tennant Ave - 2 - Santa Teresa, San Jose
- 4 Bed
- 3 (2/1) Bath
- 4 Park
- 1,521 sqft
- SAN JOSE
-
-
Sat Feb 21, 1:00 pm - 4:00 pm
-
Sun Feb 22, 1:00 pm - 4:00 pm
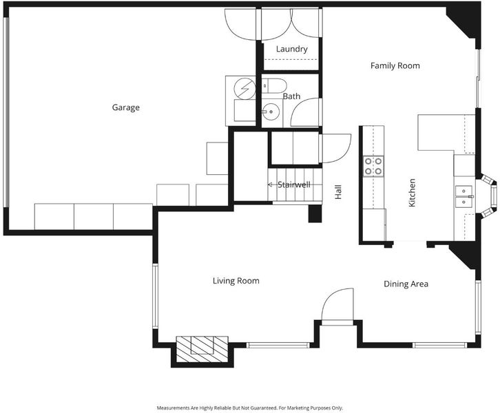
Welcome to 5961 S Surf Ct, a charming single-family home blending comfort and functionality. This 1,521 sq. ft. residence features 4 spacious bedrooms, 2.5 bathrooms, and a private primary ensuite with beautiful hillside views. Natural light streams through dual pane windows, accentuated by recessed lighting, while architectural ceilings and a mix of hardwood, carpet, and stone flooring add warmth and character. The kitchen, complete with a breakfast bar, range, refrigerator, microwave, and dishwasher, flows seamlessly into the dining area and cozy living space, featuring a fireplace perfect for relaxing or entertaining. A family room with in-ceiling surround sound wired to a custom media cabinet is ready for movie nights. Outside, the front yard boasts manicured landscaping and mature roses, while the backyard features a shaded patio, perfect for outdoor dining or lounging. Seasonal delights include persimmons, lime, figs, passionfruit, pomegranate, mandarins, night jasmine, and two curry leaf trees. Additional highlights include a separate laundry room with washer and dryer hookups and newer central heating and air conditioning for year-round comfort. Don't miss your chance to own this stunning San Jose gem!
- Days on Market
- 1 day
- Current Status
- Active
- Original Price
- $1,325,000
- List Price
- $1,325,000
- On Market Date
- Feb 20, 2026
- Property Type
- Single Family Home
- Area
- 2 - Santa Teresa
- Zip Code
- 95138
- MLS ID
- ML82035539
- APN
- 678-51-023
- Year Built
- 1984
- Stories in Building
- 2
- Possession
- COE
- Data Source
- MLSL
- Origin MLS System
- MLSListings, Inc.
Starlight High School
Private 8-12 Special Education, Secondary, Coed
Students: NA Distance: 0.5mi
Ledesma (Rita) Elementary School
Public K-6 Elementary
Students: 494 Distance: 0.8mi
Los Paseos Elementary School
Public K-5 Elementary
Students: 501 Distance: 1.1mi
Stratford School
Private K-5 Core Knowledge
Students: 301 Distance: 1.1mi
Santa Teresa Elementary School
Public K-6 Elementary
Students: 623 Distance: 1.2mi
Martin Murphy Middle School
Public 6-8 Combined Elementary And Secondary
Students: 742 Distance: 1.3mi
- Bed
- 4
- Bath
- 3 (2/1)
- Parking
- 4
- Attached Garage
- SQ FT
- 1,521
- SQ FT Source
- Unavailable
- Lot SQ FT
- 4,495.0
- Lot Acres
- 0.103191 Acres
- Kitchen
- 220 Volt Outlet, Countertop - Granite, Dishwasher, Garbage Disposal, Hood Over Range, Microwave, Oven Range - Electric, Refrigerator
- Cooling
- Central AC
- Dining Room
- Formal Dining Room
- Disclosures
- Natural Hazard Disclosure
- Family Room
- Kitchen / Family Room Combo
- Flooring
- Carpet, Hardwood, Stone
- Foundation
- Concrete Slab
- Fire Place
- Wood Burning
- Heating
- Central Forced Air - Gas
- Laundry
- Electricity Hookup (220V), Inside
- Possession
- COE
- Fee
- Unavailable
MLS and other Information regarding properties for sale as shown in Theo have been obtained from various sources such as sellers, public records, agents and other third parties. This information may relate to the condition of the property, permitted or unpermitted uses, zoning, square footage, lot size/acreage or other matters affecting value or desirability. Unless otherwise indicated in writing, neither brokers, agents nor Theo have verified, or will verify, such information. If any such information is important to buyer in determining whether to buy, the price to pay or intended use of the property, buyer is urged to conduct their own investigation with qualified professionals, satisfy themselves with respect to that information, and to rely solely on the results of that investigation.
School data provided by GreatSchools. School service boundaries are intended to be used as reference only. To verify enrollment eligibility for a property, contact the school directly.



































